![]() |
|
|
Курсовая работа: Проект ленточного конвейера
Принимаем Коэффициент диаметра червяка:
Принимаем q=10 Коэффициент смещения:
Угол подъема линии витка червяка: на делительном цилиндре
на начальном цилиндре
Фактическое передаточное число:
Делительный диаметр:
Диаметры окружностей выступов:
Диаметры окружностей впадин:
Длина нарезной части червяка:
Наибольший диаметр колеса:
Ширина венца: Т.к Тогда
|
|||||||||||||||||||||||||||||||||||||||||||||||||||||||||||||||
| Вал | Место установки |
D, мм |
B, мм |
H, мм |
t1, мм |
L, мм |
| 1 | Под муфту | 25 | 5 | 5 | 3 | 40 |
| 2-3 | Под зубчатое колесо | 35 | 10 | 8 | 5 | 28 |
| 4-5 | Под муфту | 60 | 18 | 11 | 7 | 110 |
![]()
где, Т – крутящий момент на валу, Н×мм2;
d – диаметр участка вала под шпонку, мм;
h – высота шпонки, мм;
t1 – глубина паза вала, мм;
l – длина шпонки, мм;
b – ширина шпонки, мм;
Предел прочности для стального колеса: [sсм] = 80…100 МПа,
МПа,
МПа,
МПа
Вывод: выбранные шпонки пригодны для использования.

Рисунок 7-МУВП
Муфты МУВП
стандартизарованы по ГОСТ 21424-93. Муфта выбирается из условия - максимального
передаваемого момента. Т
=35,58 - момент передаваемый
муфтой, Н·м d
=32 - диаметр вала электродвигателя,
мм d
= 25 - диаметр входного вала
редуктора, мм Выбираем муфту МУВП-2
Основные
параметры Номинальный крутящий момент:Тном =63 Н•м диаметр расточки под вал -
наимньший: d=20 мм - наибольший :d
= 38 мм d
= 10 - диаметр пальца, мм lвт = 15 - длина упругого злемента, мм d
=63 - диаметр окружности расположения пальцев, мм z
=6 - число пальцев с = З - зазор между полумуфтами, мм
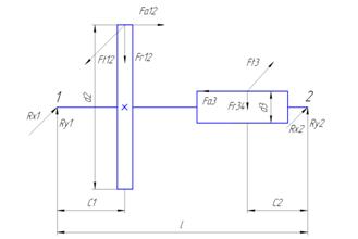
8. Определение реакций опор промежуточного вала и построение эпюр

Рисунок 8.1 - Расчетная схема промежуточного вала
Определим реакции опор:
Рассмотрим проекции сил в плоскости ХZ :
-Ft12 ×(l-c1) + Ft3 × c2 + RХ1 × l =0;
тогда
Н
Ft3 ×(l-c2) - Ft12 × c1 + RХ2 × l =0;
тогда
Н
Рассмотрим проекции сил в плоскости УZ:
Fr12 × (l-c1) - Fa12 × d2/2 + Fr34 × c2 + Fa34 × d3/2- RУ1 × l =0;
тогда

Fr34 × (l-c2) + Fa34 × d3/2+ Fr12 × c1 - Fa12 × d2/2+ RУ2 × l =0;
тогда

Суммарные реакции опор:
Н
Н
Эпюра моментов Мх:
Точка А.
MXА = RХ1 × С1![]()
![]()
MXА=![]()
Точка В \MXВ =
Н×м
Эпюра моментов Му:
Точка А
MуА = -RУ1 × С1![]()
MуА =![]()
Точка В:
Мув= ![]()
Эпюра моментов Мкр:
Мк=Т![]()
Мк=100,4 Н•м
Эпюра продольных сил:
Fa = Fa
-Fa![]()
Fa = 13122,99 H

Рисунок 8.2 Схема сил и эпюры моментов на проверяемом валу
9. Уточненный расчет вала 2-3

Рисунок 9 Эскиз вала и обозначение мест сечений
Уточненный расчет состоит в определении коэффициентов запаса прочности S для опасных сечений и сравнении их с требуемыми (допускаемыми) напряжениями [S]. Прочность соблюдена при S > [S].
Расчет производится по опасным сечениям А-А, Б-Б).
Материал вала ─ сталь 45.
Таблица 9.
Исходные данные для проверочного расчета
|
Диаметр заготовки мм |
Твердость НВ |
σв МПа |
σт МПа |
τт МПа |
σ-1 МПа |
τ-1 МПа |
Ψт |
| <80 | 270 | 900 | 650 | 390 | 640 | 230 | 0,10 |
Сечение А - А: Концентратором напряжений является шпоночный паз.
Коэффициент запаса прочности:
S= Sσ· Sτ/![]()
Sσ=σ-1D/ σа
Sτ=τ-1D/( τа+ψτD· τа),
где σа и τа ─ амплитуды напряжений цикла;
ψτD ─ коэффициент влияния асимметрии цикла напряжений.
σа=103·М/W; τа=103·М к/2Wк
М= ![]()
Определим моменты инерции:
W1=π·d3/32-b2·h2·(2d-h2)2/(16d)=3.14·353/32-10·8(2·35 -8)2/(16·35) =
3660мм3
Wк=π·d3/16-b2·h2·(2d-h2)2/(16d)= 3.14·353/16-10·8(2·35-8)2/(16·35) =
7869мм3
σа=103 · 158,6 / 3660 = 43,3 МПа
τа=103 · 100,4 / 2 · 7869 = 33,085 МПа
Пределы выносливости вала:
σ-1D= σ-1/КσD; τ-1D= τ-1/КτD,
где КσD и КτD ─ коэффициенты снижения предела выносливости.
КσD=( Кσ/ Кdσ+1/ КFσ-1)/ КV,
КτD=( Кτ/ Кdτ+1/ КFτ-1)/ КV,
где Кσ и Кτ ─ эффективные коэффициенты концентрации напряжений;
Кdς и Кdτ ─ коэффициенты влияния абсолютных размеров поперечного
сечения;
КFς и КFτ ─ коэффициенты влияния качества поверхности;
КV ─ коэффициент влияния поверхностного упрочнения.
КσD=( 4,85+1/0,91-1)/ 1=4,95
КτD=( 2,9+1/0,95-1)/ 1=2,95
σ-1D= 410 / 4,95 =82,828МПа; τ-1D= 230 /2,95 = 77,966 МПа
ψτD=ψτ/ КτD
ψτD=0,1/ 2,95=0,034
Sσ= 129,29 / 43,3 = 2,98 Sτ= 77,9 / (6,3 + 0,034 × 6,3) = 11,8
S= 2,98 · 11,8/
=2,9 > [S] = 2.5
Проверка показала, что коэффициент запаса прочности в рассматриваемом сечении больше чем требуемый.
Сечение Б-Б.
Коэффициент запаса прочности:
S= Sσ· Sτ/![]()
Sσ=σ-1D/ σа
Sτ=τ-1D/( τа+ψτD· τа),
σа=103·М/W; τа=103·М к/2Wк
М= ![]()
Определим моменты инерции:
W=π·d3/32=3.14·633/32=24548 мм3
Wк=π·d3/16=3.14·633/16=49097 мм3
σа=103 ·845,5 / 24548 = 34,4 МПа
τа=103 · 100,4 / 2 ·49097 = 1,022 МПа
Пределы выносливости вала:
σ-1D= σ-1/КσD; τ-1D= τ-1/КτD,
где КσD и КτD - коэффициенты снижения предела выносливости.
КσD=( Кσ/ Кdσ+1/ КFσ-1)/ КV,
КτD=( Кτ/ Кdτ+1/ КFτ-1)/ КV,
КσD=( 4,7+1/0,88-1)/ 1=4,84
КτD=( 2,8+1/0,935-1)/ 1=2,87
σ-1D= 410 / 4,84 =84,711 МПа; τ-1D= 230 /2,84 = 80,986 МПа
ψτD=ψτ/ КτD
ψτD=0,1/ 2,84=0,035
Sσ= 132,2 / 34,4 = 2,9 Sτ= 80,9 / (1,02 + 0,035 × 1,02) = 76,5
S= 2,9 · 76,5 /
= 3,8 > [S] = 2.5
Проверка показала, что коэффициент запаса прочности в рассматриваемом сечении больше чем требуемый.
10. Проверка подшипников
Условие годности подшипников
,
где Lh – расчетный ресурс (долговечность);
[Lh] – требуемый ресурс.
,
где tΣ – суммарное время работы.
ч.
,
где a1 – коэффициент, корректирующий ресурс в зависимости от надежности (при вероятности безотказной работы Pt = 90%, a1 = 1);
a23 – коэффициент, корректирующий ресурс в зависимости от особых свойств подшипника (для шариковых подшипников a23 = 0,7…0,8, принимается a23 = 0,75);
Cr = базовая динамическая грузоподъемность подшипника ( для подшипника 208 Cr = 25,6 кН);
Pэкв – эквивалентная динамическая нагрузка;
N23 – частота вращения вала;
m = 3 – показатель степени для шариковых подшипников.
Fa1 = 2.314-внешняя осевая сила, Н
Fr1 = Ke•R1 = 0.56•2259.8
Отношение
FaА / (V × Fr1) = 2,314 / 1 × 1265,499 = 0,001.
Тогда для опоры:
Х =0,56; Y = 0,44/е.
Найдём эквивалентную динамическую радиальную нагрузку, для обоих подшипников:
,
где коэффициенты V = 1, Кб = 1 , КТ = 1
Н

Рисунок 10 Схема распределения сил
Таким образом, принимаем e = 0,065
>10161,6 =
.
Проверка показала, что рабочий ресурс подшипника больше требуемого.
11. Конструктивные размеры корпуса редуктора
Расстояние между стенками корпуса и зубчатыми колесами:
а* =
+3
где, L – главный габарит редуктора.
L = aw12 + da2/2 + da4/2
L = 140 + 97,15 + 101 = 323,15 мм
а* =
+3 = 9,86 Принимаем а* = 10
Толщина стенок корпуса и крышки:
мм
где, Т – крутящий момент на выходном валу, Н×мм;
мм Принимаем d = 7мм.
Толщина фланцев корпуса и крышки:
b = 1.5 × d = 1.5 × 7= 10.5 мм
Толщина ребер:
m = (0.85…1) d
m= 1 × 7= 7 мм.
Диаметры болтов:
· Фундаментных:
d1 = 0.036 × a +12 = 0.036 × 125 + 12 = 16,5=>
принимаем фундаментальные болты с резьбой М18;
· Болтов, крепящих крышку к корпусу у подшипника:
d2 = (0.7 - 0.75)d1
d2 = 0.75 ×18 = 13,5 мм;
принимаем болты с резьбой М14;
· Болтов, соединяющих крышку с корпусом: d3 = (0.5 – 0.6) d1 =0,6 ×18 =10.8мм принимаем болты с резьбой М12.
По таблице устанавливаем вязкость масла. При контактных напряжениях до 600 Н/мм2 и скорости V до 5 м/с рекомендуемая вязкость масла должна быть примерно равна 28 мм2/с. По таблице из справочной литературы принимаем масло индустриальное И-30А (табл. 11.1-11.3, стр. 200, /4/).
Допустимый уровень погружения колес в масляную ванну:
мм
Контроль масла, находящегося в корпусе редуктора осуществляется с помощью смотрового окна.
13. Подбор посадок и допусков
Зубчатые колеса: H7/r6.
Крышки торцовых узлов на подшипниках качения: H7/h8.
Шпоночные соединения: P9/h9.
Штифт с картеров: P8/h7.
Штифт с крышкой: H8/h7.
14. Сборка и регулировка редуктора
Перед сборкой полость корпуса редуктора подвергают очистке и покрывают маслостойкой краской. Сборку редуктора производят в соответствии с чертежом общего вида.
На входной вал насаживают подшипники, предварительно нагретые в масле до 80 - 100˚С.На промежуточный вал насаживают подшипник предварительно нагретый в масле до 80 - 100˚С.Затем закладывают шпонку и напрессовывают зубчатое колесо до упора в бурт вала. Насаживают подшипник предварительно нагретый в масле до 80 - 100˚С.На выходной вал закладывают шпонку и напрессовывают зубчатое колесо, насаживают подшипники, предварительно нагретые в масле до 80 - 100˚С.Валы устанавливают в корпус. Для центровки устанавливают крышку редуктора на корпус с помощью цилиндрических штифтов, затягивают болты, крепящие крышку редуктора с корпусом.
На конические хвостовики входного и выходного валов закладывают шпонки и надевают муфту и шкив.
Ввертывают пробку маслоспускного отверстия с прокладкой и устанавливают маслоуказатель. Заливают в корпус масло и закрывают смотровое отверстие крышкой с прокладкой, закрепляя крышку винтами.
1. Согласно заданию был разработан привод ленточного конвейера.
2. Был выбран электродвигатель, рассчитаны зубчатые передачи, спроектированы и проверены на пригодность шпоночные соединения, подшипники, разработан общий вид редуктора, разработаны рабочие чертежи деталей: выходного вала, зубчатого колеса, шкива, крышек подшипников.
3. Были подобраны подходящие для данных условий материалы зубчатых колес. Зубчатые передачи были рассчитаны по условиям контактной выносливости зубьев, проверены на статическую прочность.
4. Электродвигатель был выбран исходя из потребной мощности и условий работы привода.
5. Шпоночные соединения были проверены смятие. Пригодность подшипников была оценена по ресурсу долговечности.
6. Форма и размеры деталей редуктора и рамы привода были определены конструктивными и технологическими соображениями, а также выбором материалов и заготовок.
Список использованной литературы
Дунаев П.Ф., Леликов О.П. Конструирование узлов и деталей машин. Учебное пособие для техн. спец. вузов. – 6-е изд., исп. – М.: Высш. шк., 2000 – 447с., ил.
Чернавский С.А., Боков К.Н. Курсовое проектирование деталей машин: Учебное пособие для учащихся машиностроительных специальностей техникумов: Машиностроение, 1988г.
3. Левитский И.Г. Расчет клиноременной передачи: Методические указания по курсовому проектированию. Хабаровск, издательство ХГТУ, 1991.
![]() |
||
| НОВОСТИ | ![]() |
|
![]() |
||
| ВХОД | ![]() |
|
|
|||||
Рефераты бесплатно, реферат бесплатно, сочинения, курсовые работы, реферат, доклады, рефераты, рефераты скачать, рефераты на тему, курсовые, дипломы, научные работы и многое другое. |
||
При использовании материалов - ссылка на сайт обязательна. |
||