рефераты бесплатно
 
Главная | Карта сайта
рефераты бесплатно
РАЗДЕЛЫ

рефераты бесплатно
ПАРТНЕРЫ

рефераты бесплатно
АЛФАВИТ
... А Б В Г Д Е Ж З И К Л М Н О П Р С Т У Ф Х Ц Ч Ш Щ Э Ю Я

рефераты бесплатно
ПОИСК
Введите фамилию автора:


Дипломная работа: Проектирование системы кондиционирования воздуха

- снимать защитные кожухи с токонесущих частей магнитных пускателей, клеммных коробок электродвигателей, приборов автоматики и других частей, находящихся под напряжением;

- снимать ограждения с движущихся и вращающихся частей агрегата;

- эксплуатировать оборудование при снятых защитных кожухах с частей оборудования, находящихся под напряжением;

- прикасаться к движущимся частям включенного в сеть агрегата независимо от того, находится он в работе или в периоде автоматической остановки;

- эксплуатировать оборудование при неисправных приборах автоматики и защиты;

- выполнять работы по ремонту оборудования, регулировке приборов лицам, не знакомым с работой машины;

- устанавливать на электрощитках самодельные предохранители (жучки) вместо стандартных плавких предохранителей (пробок).


3. Расчетная часть

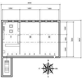
Рис. 18. План установки кондиционирования воздуха для столовой на 100 посадочных мест. I – кухня ; II – торговый зал.

Столовая находится на втором этаже типового двухэтажного здания. Наружная стена (восточная) выполнена из кирпичной кладки толщиной 370 мм. Внутренние стены также выполнены из кирпичной кладки толщиной 250 мм. Теплоизоляционное покрытие – плиты жесткие минераловатные - присутствует только у наружной стены.

Оконные проемы с двойным спаренным переплетом и расстоянием между стеклами 15 мм.

Кровля шатровая, покрытая профнастилом. Утеплителем кровли служит слой рубероида толщиной 20мм.

Высота потолков помещения – 3 м.

3.1 Тепловлажностный баланс кондиционируемого помещения

Расчетные параметры воздуха в кондиционируемых помещениях устанавливаются в результате притока и отвода тепла и влаги в эти помещения. Так, в летнее время, как правило, в помещениях выделяется избыточное количество тепла и влаги. Поэтому задача установки кондиционирования воздуха — охлаждение и осушение воздуха в помещении. В зимний период, наоборот, воздух, подаваемый в кондиционируемое помещение, нагревают и увлажняют для компенсации тепло- и влагопотерь кондиционируемых помещений.

Тепло, поступаемое в помещение (со знаком +) или уходящее из него (со знаком—), подсчитывают по формуле:

∑Q = Qл + Qоб + Qосв ± Qм ± Qогр + Qрад + Qинф, квт

где: Qл — тепловыделение от людей, вт;

Qо6 — тепловыделение от технологического оборудования;

Qосв — тепловыделение от осветительных приборов;

Qм—тепловыделение от обрабатываемых технологических материалов;

Qoгp — теплопоступление через ограждающие конструкции;

Qpaд — теплопоступление от солнечной радиации;

Qинф — теплопоступление от инфильтрации наружного воздуха.

Общее количество влаги, поступаемое в помещение (со знаком + ), либо поглощаемое в нем (со знаком —), подсчитывают по формуле:

∑W = Wл + Woб ± Wм + W инф кг/сек,

где Wл — влаговыделение от людей;

Wo6 — влаговыделение от технологического оборудования;

WM — влаговыделение от обрабатываемых материалов;

Wинф — влаговыделение от инфильтрации наружного воздуха

При расчете установки кондиционирования воздуха необходимо знать не только величину суммарных тепло- и влаговыделений, но и их отношение Eп.


EП = ∑Q/∑W кдж/кг.

Эта величина называется тепловлажностным отношением. Если помещение, в котором имеются постоянные теплопритоки ∑Q и влагопритоки ∑W, не оборудовано установкой кондиционирования воздуха, то параметры воздуха в помещении начнут изменяться (температура, влажность и энтальпия воздуха увеличиваются). Процесс этого изменения в i—d диаграмме изображается прямой линией, проходящей через точку П с заданными температурой и влажностью в помещении (пунктирная линия на рис. 18). Угол наклона этой линии зависит от величины EП. Чтобы удержать положение точки П (т. е. чтобы температура и влажность в помещении не менялись), в летнее время в помещение подают более холодный и более сухой воздух, состояние которого на рис. 18 обозначено точкой K. Эта точка тоже должна лежать на линии с наклоном Eп (но ниже точки П), так как только при этом условии воздух, поданный в помещение, одновременно поглотит избыток тепла ∑Q и избыток влаги ∑W, в результате чего положение точки П останется неизменным.

Положение точки К на линии с наклоном Еп определяется допустимой разностью (перепадом) температур ∆t между приточным воздухом (точка К) и воздухом в помещении (точка П).

Перепад температур выбирается, исходя из принятого способа распределения воздуха, а также высоты помещения. На практике для торговых залов предприятий общественного питания ∆t —4 : 8 °С.

Для производственных помещений при подаче воздуха в рабочую зону перепад ∆t принимается в пределах 6—9 °С, а при подаче воздуха под потолком — может быть увеличен до 12—14 °С

При этом меньшие значения ∆t соответствуют помещениям с высотой до 3,0 м.


Рис. 18. Изображение процесса изменения состояния воздуха в помещении в i—d диаграмме влажного воздуха.

3.2 Определение теплопритоков

Теплоприток от людей.

Количество тепла выделяемое людьми Qл (в Вт) подсчитывают по формуле:

Qл= qчел · n ,

где qчел - величина тепловыделения одним человеком в зависимости от температуры воздуха в помещении и рода выполняемой работы.

qчел = 70 вт [1. стр. 259, таб. 76]

n - число людей, одновременно находящихся в помещении.

Qл= 70 · 100 = 7000 вт

Теплоприток от освещения.

Теплопоступления от осветительных приборов рассчитываются по формуле:

Qосв= А · F,

где А – удельный теплоприток от осветительных приборов на 1 м2 площади. Для предприятий общественного питания А = 4.5 вт/м2

F – площадь помещения

Qосв= 4.5 · 1200 = 5400 вт

Тепловыделение от пищи (по укрупненным показателям):

Qм = Qодн. порц. · n , вт

где Qодн. порц - тепловыделение от одной порции пищи.

Qодн. порц = 17.5 вт [1. стр. 265]

Qм = 17.5 · 100 = 1750 вт

Теплопритоки через наружные ограждения.

Определяем толщину теплоизоляционного слоя наружной стены по формуле:

δиз = λиз [1/K – (1/λн + ∑δi/λi + 1/ λв] , м.

где К – нормативный коэффициент теплопередачи ограждения, вт/(м2 · град)

К = 0.75 вт/(м2 · град) [1. стр. 74]

λн - коэффициент теплопередачи от воздуха к наружной поверхности ограждения, вт/(м2 · град)

λн = 23.3 вт/(м2 · град) [1. стр. 67 таб. 14]

λв - коэффициент теплоотдачи от внутренней поверхности ограждения к воздуху данного помещения, вт/(м2 · град)

λв = 9 вт/(м2 · град) [1. стр. 67 таб. 14]

δi , δиз –толщины изоляционного и других слоев материалов, составляющих конструкцию ограждения, м.

δкирп. кладки = 0.37 м

δштукатурки = 0.02 м

λиз , λi – коэффициенты теплопроводности изоляционного и строительных материалов, вт/(м · град)

λиз (мин. плит) =0.084 вт/(м · град) [1. стр. 68 таб. 15]

λкирп. кладки = 0.82 вт/(м · град) [1. стр. 69 таб. 15]

λштукатурки = 0.9 вт/(м · град) [1. стр. 69 таб. 15]

δиз = 0.084 [1/0.75 – (1/23.3 + 0.37/0.82 + 0.02/0.9 + 0.02/0.9 + 1/9)] = 0.067 м.

Плиты жесткие минераловатные по ГОСТ 10140 – 62 выпускаются следующих размеров: длина – 1000мм , ширина – 500мм , толщина – 40,

50 и 60 мм. Принимаем толщину слоя плиты 60 мм.

Определяем значение действительного коэффициента теплопередачи через ограждения Кд для наружной (восточной) стены.

Кд = 1/(1/ λн + ∑δi/λi + 1/ λв) + δиз. пр/λиз , вт/(м2 · град)

где λн = 23.3 вт/(м2 · град) [1. стр. 67 таб. 14]

λв = 9 вт/(м2 · град) [1. стр. 67 таб. 14]

δштукатурки = 0.02 м

δкирп. кладки = 0.37 м

δиз. пр = 0.06 м

λкирп. кладки = 0.82 вт/(м · град) [1. стр. 69 таб. 15]

λштукатурки = 0.9 вт/(м · град) [1. стр. 69 таб. 15]

λиз (мин. плит) = 0.084 вт/(м · град) [1. стр. 68 таб. 15]

Кд = 1/(1/ 23.3 + 0.37/0.82 + 0.02/0.9 + 0.02/0.9 + 1/ 9) + 0.06/0.084 = 0.735 вт/(м2 · град)

Теплоприток через наружную (восточную) стену определяем по формуле:

Qвост. ст = Кд · F · ∆t

∆t = (tн–tв) =28.5 – 25 = 3.5 °С

F = 40 · 3 = 120 м2

Qвост. ст = 0.735 · 120 · 3.5 = 308.7 вт

Определяем значение действительного коэффициента теплопередачи Кд для внутренних стен :

Кд = 1/(1/ λн + ∑δi/λi + 1/ λв), вт/(м2 · град)

где λн = 23.3 вт/(м2 · град) [1. стр. 67 таб. 14]

λв = 9 вт/(м2 · град) [1. стр. 67 таб. 14]

δштукатурки = 0.02 м

δкирп. кладки = 0.25 м

λкирп. кладки = 0.82 вт/(м · град) [1. стр. 69 таб. 15]

λштукатурки = 0.9 вт/(м · град) [1. стр. 69 таб. 15]

Кд = 1/(1/ 23.3 + 0.25/0.82 + 0.02/0.9 + 0.02/0.9 + 1/ 9) = 2 вт/(м2 · град)

Теплоприток через внутренние стены определяется по формуле:

Qвост. ст = Кд · F · ∆t , вт

Температура воздуха в соседних помещениях 22 °С.

∆t = (tн–tв) =22 – 25 = - 3 °С

F = 30 · 3 + 30 ·3 + 40 · 3= 300 м2

Qвост. ст = 2 · 300 · (-3) = - 1800 вт

Определяем значение действительного коэффициента теплопередачи Кд для кровли :

Кд = 1/(1/ λн + ∑δi/λi + 1/ λв), вт/(м2 · град)

где λн = 23.3 вт/(м2 · град) [1. стр. 67 таб. 14]

λв = 9 вт/(м2 · град) [1. стр. 67 таб. 14]

δ жел. бет. плиты = 0.3 м

δ возд. просл. средн .= 1.5 м

δ проф. настила = 0.0015 м

δ рубероид = 0.02 м

λ жел. бет. плиты = 1.4 вт/(м · град) [1. стр. 68 таб. 15]

λ возд. просл. = 0.02553 вт/(м · град) [1. стр. 69 таб. 15]

λ проф. настила (сталь)= 58 вт/(м · град) [1. стр. 68 таб. 15]

λ рубероид = 0.16 вт/(м · град) [1. стр. 68 таб. 15]

Кд = 1/(1/ 23.3 + 0.3/1.4 + 1.5/0.02553 + 0.0015/58 + 0.02/0.16 + 1/9) = 0.0169 вт/(м2 · град)

Определяем теплоприток через кровлю:

Qкровли = Ккр · Fкр · ∆t + Ккр · Fкр · ∆tсолн. , вт [4. стр. 56]

где ∆t = (tн–tв) =28.5 – 25 = 3.5 °С

∆tсолн. = 10 °С [2. стр. 58]

Fкр = 1200 м2

Qкровли = 0.0169 · 1200 · 3.5 + 0.0169 · 1200 · 10 = 273.78 вт

Определяем значение действительного коэффициента теплопередачи Кд для пола :

Кд = 1/(1/ λн + ∑δi/λi + 1/ λв), вт/(м2 · град)

где λн = 23.3 вт/(м2 · град) [1. стр. 67 таб. 14]

λв = 9 вт/(м2 · град) [1. стр. 67 таб. 14]

δ жел. бет. плиты = 0.3 м

δ паркета (дуб) = 0.02 м

λ жел. бет. плиты = 1.4 вт/(м · град) [1. стр. 68 таб. 15]

λ паркета (дуб) = 0.23 вт/(м · град) [1. стр. 68 таб. 15]

Кд = 1/(1/ 23.3 + 0.3/1.4 + 0.02/0.23 + 1/9) = 2.2 вт/(м2 · град)

Определяем величину теплопритока через пол:


Qпол = Кд · F · ∆t , вт

где ∆t = (tн–tв) =22 – 25 = - 3 °С

F = 1200 м2

Qпол = 2.2 · 1200 · (-3) = - 7920 вт

Таб. 3. Сводная таблица теплопритоков

Ограждения

Кд, вт/(м2 ·град)

F , м2

∆t , °С

Qогр , вт

Восточная стена 0.735 120 3.5 308.7
Внутренние стены 2 300 -3 -1800
Кровля 0.0169 1200 3.5 273.78
Пол 2.2 1200 -3 -7920

Для расчета тепла от солнечной радиации через массивные ограждения избыточную разность температур принимаем:

- для стены ориентированной на восток ∆tс вост. ст = 6 °С [1. стр. 78 таб. 16]

- для кровли ∆tс кровли = 10 °С [2. стр. 158]

Qрад = Q мас. рад = Кд (вост. ст.) · Fвост. ст. · ∆tс вост. ст + Кд (кровли) · Fкровли. · ∆tс кровли = 0.735 · 120 · 6 + 0.0169 · 1200 · 10 = 732 вт

Определяем величину теплопритока от инфильтрации.

Qинф. = Qок. инф + Qдв. инф., вт

Теплопоступления за счет инфильтрации через окна определяем по формуле:

Qок. инф. = qок · l · ρ · (tн – tвн) , вт


qок – количество инфильтрационного воздуха на 1 м. щели, м3/(м ·сек)

qок = 0.18 · 10 -3 м3/(м ·сек) [1. стр. 270 таб. 86]

ρ – плотность воздуха.

ρ = 1.29 кг/м3

ср - теплоемкость воздуха

ср = 1.01

l - половина суммарной длины щелей.

l = (lодн.окна · n) / 2, м

где lодн.окна - суммарная длина щелей одного окна.

lодн.окна = 7 м

n – число окон

n = 6

l = (7· 6) / 2 = 21 м

Qок. инф. = 0.18 · 21 · 1.29 · (28.5 – 25) = 16.03 квт

Определяем теплоприток за счет инфильтрации через дверной проем:

Qдв. инф. = qдв · n · ρ · ср · (tн – tвн) , вт

где qдв – количество воздуха проникающего через один дверной проем.

qдв = 0.31 · 10-3 м3/сек [1. стр. 270 таб. 87]

n – число дверей

Qдв. инф. = 0.31 · 1 · 1.29 · 1.01 · (22 – 25) = - 1.21 квт

Qинф. = Qок. инф + Qдв. инф. = 16.03 + (-1.21) = 14.82 квт

Подсчитываем полное тепловыделение в торговом зале:

∑Q т.з = Qл + Qм + Qрад + Qосв + Qинф. + Qвост.ст.т.з. + Qкровли т.з. , вт


где Qвост.ст.т.з. - величина теплопритока в торговый зал через стену.

Qвост.ст.т.з. = Кд · F · ∆t = 0.735 · 84 · (28.5 – 25) = 216.1 вт

Qкровли т.з - величина теплопритока в торговый зал через кровлю.

Qкровли т.з = Кд · F · ∆t = 0.0169 · 840 · (28.5 – 25) = 49.7 вт

∑Q т.з = 7000 + 1750 + 732 + 1350 + 14.82 + 216.1 + 49.7 = 26747 вт = 26.75 квт

В соответствии с принятой схемой организации воздухообмена, количество наружного

Воздуха Lвент , подаваемого в помещение, равно (или на 10 % больше – для создания подпора) количеству воздуха, удаляемого в кухне системой вытяжной вентиляции (Lвыт).

Для определения Lвыт необходимо знать величину полного тепловыделения на кухне ∑Qкух.

Тепловыделения от людей.

Количество тепла выделяемое людьми Qл (в Вт) подсчитывают по формуле:

Qл= qчел · n ,

где qчел - величина тепловыделения одним человеком в зависимости от температуры воздуха в помещении и рода выполняемой работы.

qчел = 70 вт [1. стр. 259, таб. 76]

n - число людей, одновременно находящихся в помещении.

В кухне одновременно находятся 12 человек.

Qл= 70 · 12 = 768 вт

Тепловыделения от теплового оборудования.

В кухне столовой используется следующее тепловое оборудование:

- жарочная поверхность Karma GH – 818 (2 шт.) ; мощность – 3 квт

- электрическая плита ES – 47/1 (2 шт.); 4 конфорки мощностью 4 х 2.5 квт и духовой шкаф мощностью 4.5 квт.

- электросковорода БЛ – 2 (2 шт.) мощностью 2 х 1.9 квт

- холодильный шкаф AFN – 1402 (2 шт.) мощностью 0.72 квт

Qоб = 3 · 2 + 14.5 · 2 + 3.8 · 2 + 0.72 · 2 = 44.04 квт

Теплопоступления через наружные ограждения.

Qвост.. ст. кух. = Кд · F · ∆t = 0.735 · 36 · (28.5 – 25) = 92.6 вт

Qкровли кух. = Кд · F · ∆t = 0.0169 · 360 · (28.5 – 25) = 21.3 вт

Величина полного тепловыделения в кухню составит:

∑Q кух = Qл + Qоб + Qвост.ст.кух. + Qкровли кух. = 0.768 + 44.04 + 0.0926 +0.0213 = 44.92 квт

3.3 Определение влагопритоков

Определяем величину влаговыделений в торговом зале.

Влаговыделение от людей :

Wл = Wчел · n , кг/сек

где n – число людей в помещении.

Wчел – влаговыделение от одного человека

Wчел = 32.2 · 10 -6 кг/сек [1. стр.259. таб. 76]

Wл = 32.2 · 10 -6 · 100 = 0.0032 кг/сек

Влаговыделение от пищи :

Wл = 2 / 3 · Qм / 700, кг/сек

где Qм – величина тепловыделения от пищи в торговом зале.

Qм = 1.75 квт

Wл = 2 / 3 · 1.75 / 700 = 0.0017 кг/сек

Влаговыделение от инфильтрации :

Величину теплопритока от инфильтрации определяем по формуле :

Wинф. = Wок. инф + Wдв. инф., кг/сек

Влагопоступления за счет инфильтрации через окна определяем по формуле:

Wок. инф. = qок · l · ρ · (d0 – d1) , кг/сек

qок – количество инфильтрационного воздуха на 1 м. щели, м3/(м ·сек)

qок = 0.18 · 10 -3 м3/(м ·сек) [1. стр. 270 таб. 86]

ρ – плотность воздуха.

ρ = 1.29 кг/м3

l - общая длина щелей.

l = lодн.окна · n, м

где lодн.окна - суммарная длина щелей одного окна.

lодн.окна = 7 м

n – число окон

n = 6

l = 7· 6 = 42 м

d0 – влагосодержание наружного воздуха, кг/кг сухого воздуха

d0 = 0.013 кг/кг [5. стр.41. рис. 40]

d1 – влагосодержание внутреннего воздуха, кг/кг сухого воздуха

d1 = 0.015 кг/кг [5. стр.41. рис. 40]

Wок. инф. = 0.18 · 42 · 1.29 · (0.013 – 0.015) = - 0.0195 кг/кг

Влагопоступления за счет инфильтрации через дверные проемы определяем по формуле:

Wдв. инф. = - qдв · ρ · (d0 – d1) , кг/сек

qдв – количество воздуха проникающего через один дверной проем.

qок = 0.18 · 10 -3 м3/(м ·сек) [1. стр. 270 таб. 86]

ρ – плотность воздуха.

ρ = 1.29 кг/м3

d0 – влагосодержание наружного воздуха, кг/кг сухого воздуха

d0 = 0.013 кг/кг [5. стр.41. рис. 40]

d1 – влагосодержание внутреннего воздуха, кг/кг сухого воздуха

d1 = 0.015 кг/кг [5. стр.41. рис. 40]

Wдв. инф. = - 0.31 · 1.29 · (0.013 – 0.015) = 0.0008 кг/сек

Wинф. = Wок. инф + Wдв. инф = - 0.0195 + 0.0008 = - 0.0187 кг/сек

Полное влаговыделение в торговом зале составит:

∑W т.з. =Wл + Wм + Wинф. = 0.0032 + 0.0017 + (- 0.0187) = -0.0138 кг/сек

3.4 Определение тепловлажностоного коэффициента

Определяем тепловлажностное отношение в торговом зале:

E = ∑Q/∑W = 26.75/(-0.0138) = -1938 кдж/кг.


3.5 Построение процессов изменения воздуха на i – d диаграмме

На i – d диаграмму влажного воздуха наносим точку П с параметрами воздуха в помещении (tв = +25 °С φв= 50 %). Из этой точки проводим луч процесса, параллельный линии тепловлажностного отношения Е = -1938 кдж/кг.

На проведенной линии, задаваясь перепадом температур воздуха ∆t = 8 °С, находим параметры воздуха на выходе из кондиционера (·) К (см. п. 3.1. рис 18).

Параметры (·) К :

t = +17 °С

φ= 90 %

i = 48.0 кдж/кг

d = 0.013 кг/кг

Принимая для кухни ∆t = t ух - t пр = 10 °С, определяем количество воздуха, удаляемого вытяжкой:

Lвыт = ∑Q кух / ρ · ср · ∆t = 44.92/1.29 · 1.01 · 10 = 3.7 м3/cек

Задаваясь перепадом температур ∆t = 8 °С, определяем производительность кондиционера по воздуху:

Lк = ∑Q т.з. / ρ · ср · ∆t = 26.75 / 1.29 · 1.01 · 8 = 2.5 м3/cек

Полученное значение меньше количества воздуха, удаляемого вытяжной системой (Lвыт), поэтому производительность кондиционера по воздуху с учетом необходимого подпора определяем следующим образом:

Lк = 1.1 · Lвыт = 1.1 · 3.7 = 4.07 м3/cек


В этом случае перепад температур между приточным воздухом и воздухом в помещении составит:

∆t = ∑Q т.з. / ρ · ср · Lк = 26.75 / 1.29 · 1.01 · 4.07 = 5.04 °С

Определяем холодопроизводительность кондиционера:

Q0 = Lк · ρ · (iп – iк) = 4.07 · 1.29 · (51 – 48) = 15.75 квт

iп – энтальпия (·) П

iп = 51 кдж/кг [5.стр 41 рис 40]

iк – энтальпия (·) К

iк = 48 кдж/кг [5.стр 41 рис 40]

3.6 Выбор кондиционера

По найденным величинам холодопроизводительности и производительности по воздуху принимаем к установке центральный кондиционер (из типовых секций) марки КТ-30 с номинальной производительностью по воздуху 30 000 м3/час [1.стр 292]

3.7 Подбор оборудования

3.7.1 Подбор поверхностного воздухоохладителя

Исходя из производительности кондиционера принимаем к установке однорядную Секцию 03.1010.0 [1. стр. 295 таб. 92]

Определяем массовую скорость воздуха в воздухоохладителе:

ύρ = Lк · ρ/fж , кг/(м2 · сек)


где fж – живое сечение для прохода воздуха, м2

fж = 1.44 м2 [1. стр. 295 таб. 92]

ύρ = 4.07 · 1.29/1.44 = 3.65 кг/(м2 · сек)

Определяем расход тепла на охлаждение воды :

Q = Кд · F · ∆t , вт

где К – коэффициент теплопередачи

К = 8 ккал/ м2 · час · °С [7. стр. 122 таб. 60]

Страницы: 1, 2, 3, 4, 5


рефераты бесплатно
НОВОСТИ рефераты бесплатно
рефераты бесплатно
ВХОД рефераты бесплатно
Логин:
Пароль:
регистрация
забыли пароль?

рефераты бесплатно    
рефераты бесплатно
ТЕГИ рефераты бесплатно

Рефераты бесплатно, реферат бесплатно, сочинения, курсовые работы, реферат, доклады, рефераты, рефераты скачать, рефераты на тему, курсовые, дипломы, научные работы и многое другое.


Copyright © 2012 г.
При использовании материалов - ссылка на сайт обязательна.